Areas are IPMS 3 approximate, measured in accordance with the RICS property measurement professional statement (1st edition, May 2015).
						
					17 secure car parking spaces and 77 cycle spaces.
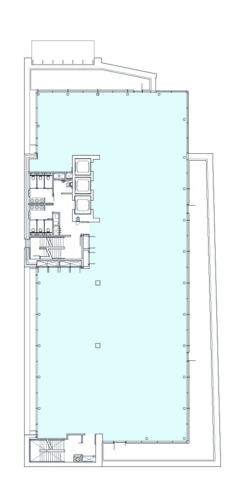
The changing area includes 56 lockers, separate male and female dry rooms with extensive amenities.
							    
							  8,272 SQ FT
768 SQ M
							
						  9,528 sq ft
885 SQ M
							
						  8,986 SQ FT
835 SQ M
							
						  Not to scale. Indicative only